







35 600 ₴
Altep Compact – механічне регулювання процесу спалювання за допомогою поворотного регулятора. Базова комплектація котла: котел у зборі, технічний паспорт, комплект для чищення.
Altep Compact Plus – базова комплектація котла, з автоматикою та вентилятором. Електронне регулювання роботи котла з PID.
| Параметр | Ед. изм. | Альтеп Компакт | |||
| Номинальная мощность котла | кВт | 15 | 20 | 25 | 35 |
| Площадь теплообменника | м2 | 1,6 | 2,1 | 2,5 | 3,2 |
| КПД | % | 85 | |||
| Размеры топки | |||||
| глубина топки | мм | 540 | 540 | 540 | 540 |
| ширина топки | мм | 360 | 360 | 360 | 360 |
| высота топки | мм | 340 | 430 | 530 | 650 |
| Объем топки | дм3 | 66 | 83 | 103 | 126 |
| Водяная емкость котла | л | 62 | 72 | 80 | 85 |
| Вес котла без води | кг | 230 | 245 | 266 | 300 |
| Необходимая тяга топочных газов | Па | 23-30 | |||
| Температура топочных газов | °C | 100-180 | |||
| Рекомендуемая мин. температура воды | °C | 58 | |||
| Максимальная температура воды | °C | 85 | |||
| Номинальное рабочее давление воды | МПа | 0,15 | |||
| Испитательное давление | МПа | 0,3 | |||
| Размер загрузочной двери, мм | высота | 190 | 190 | 190 | 190 |
| ширина | 360 | 360 | 360 | 360 | |
| Внешние размеры борова | мм | 159 | 159 | 159 | 178 |
| Диаметр патрубков сетевой воды (Ду) | мм | 40 | 40 | 40 | 50 |
| Рекомендуемые параметры дымохода | |||||
| площадь сечения | см2 | 200 | 200 | 200 | 248 |
| внутренний диаметр | мм | 160 | 160 | 160 | 180 |
| высота (минимально допустимая) | м | 5 | 5 | 7 | 6 |
| Диаметр патрубка под предохр. клапан (Ду) | мм | 15 | |||
| Давление срабатывания предохр. клапана | МПа | 0,2 | |||
Котел Altep Compact - це сталевий твердопаливний котел з ручним завантаженням палива, який може працювати в автоматичному режимі. Ця модель може бути оснащена мікропроцесорним регулятором температури, який відповідає за оптимальне функціонування котла. Якісна автоматика виробництва Польща робить експлуатацію цього котла дуже зручною. Цей контролер, відомий як "контролер", повністю керує процесом горіння, включаючи роботу нагнітального вентилятора та оптимізацію температури теплоносія. Також цей контролер відповідає за роботу циркуляційного насоса опалення. Якщо температура опалювальної системи впаде нижче 5°C, насос автоматично включиться, щоб запобігти замерзанню. Електронний блок автоматики має інтуїтивно зрозуміле меню та яскравий LED-екран, що спрощує розуміння роботи котла. Крім того, Altep Compact оснащений чавунними колосниками, які легко чистити і можна їх замінити. У верхній частині котла передбачений запобіжний клапан, а також димар з круглим перетином для відведення димових газів.
Теплообмінник Altep Compact - дворівневий, зроблений з високоякісної котлової сталі товщиною 6 мм. На передній панелі котла розміщені 3 дверцята: верхні - для чищення теплообмінника, середні - для завантаження палива, а нижні - для очищення зольного відділення.
Альтеп Компакт може використовувати вугілля, дрова та дров'яні брикети як джерела палива. Гарантія на котел становить 5 років, а на автоматичну систему - 1 рік. Вибір потужності доступний у трьох моделях: 15, 20 і 25 кВт.
Котел опалення Altep Kompakt - це компактний твердопаливний котел з великою камерою горіння, призначений для опалення будь-яких приміщень із водяною системою опалення та димовим каналом.
В основному, котел використовує дрова та дров'яні відходи як основне паливо, а також може працювати на вугіллі, торфі та брикетах. Корпус котла виготовлений з високоякісної сталі товщиною 6 мм і об'єднаний з декоративною обшивкою, що має утеплювач для зниження тепловтрат.
Теплообмінник котла зроблений зі сталі та має полично-жаротрубний тип. Труби є безшовними та цільнотягнутими, що зменшує ризик витоку.
Топка має великий об'єм і глибину, що дозволяє використовувати довгі дров'яні поліна та зекономити час і гроші на їх різанні. Колосники виконані з жароміцного чавуну, що сприяє повному спалюванню палива, без залишків. Котел вимагає ручного завантаження палива, але може бути додатково обладнаний механічним регулятором тяги або повноцінною системою автоматики.
|
Номінальна потужність котла |
кВт |
15 |
20 |
25 |
35 |
|
Площа теплообмінника |
м2 |
1,6 |
2,1 |
2,5 |
3,2 |
|
ККД |
% |
86 |
|||
|
Глибина топки |
мм |
540 |
540 |
540 |
540 |
|
Ширина топки |
мм |
360 |
360 |
360 |
360 |
|
Висота топки |
мм |
340 |
430 |
530 |
650 |
|
Об’єм топки |
дм3 |
66 |
83 |
103 |
126 |
|
Водяна ємність котла |
л |
62 |
72 |
80 |
85 |
|
Вага котла без води |
кг |
230 |
245 |
266 |
300 |
|
Необхідна тяга топкових газів |
Па |
23-30 |
|||
|
Температура топкових газів |
°C |
100-180 |
|||
|
Рекомендована мін температура води |
°C |
58 |
|||
|
Максимальна температура води |
°C |
85 |
|||
|
Номінальний робочий тиск води |
МПа |
0,15 |
|||
|
Випробувальний тиск |
МПа |
0,3 |
|||
|
Розмір завантажувальної горловини |
висота |
190 |
190 |
190 |
190 |
|
ширина |
360 |
360 |
360 |
360 |
|
|
Зовнішні розміри борову |
мм |
159 |
159 |
159 |
178 |
|
Діаметр патрубків мережевої води (Ду) |
мм |
40 |
40 |
40 |
50 |
|
Рекомендовані параметри димоходу |
|||||
|
площа перерізу |
см2 |
200 |
200 |
200 |
248 |
|
внутрішній діаметр |
мм |
160 |
160 |
160 |
180 |
|
висота (мінімально допустима) |
м |
5 |
5 |
7 |
6 |
|
Діаметр патрубка під запоб. клапан (Ду) |
мм |
15 |
|||
|
Тиск спрацьовування запобіг. клапана |
МПа |
0,2 |
|||

|
Габаритні розміри котла |
Од.вим. |
15 кВт |
20 кВт |
25 кВт |
35 кВт |
|
B |
мм |
520 |
520 |
520 |
520 |
|
H |
мм |
900 |
990 |
1090 |
1310 |
|
H1 |
мм |
850 |
945 |
1045 |
1240 |
|
H2 |
мм |
719 |
783 |
883 |
1099 |
|
H3 |
мм |
92 |
92 |
92 |
102 |
|
L |
мм |
1010 |
1010 |
1010 |
1015 |
|
L1 |
мм |
930 |
930 |
930 |
940 |

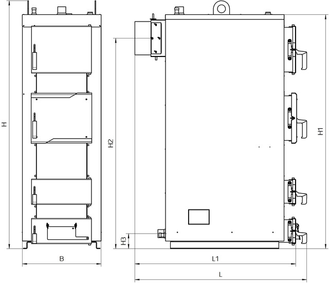
1 – Корпус котла; 2 - Камера згоряння (топка); 3 – конвекційна частина (теплообмінник); 4 – Дверцята конвекційної частини котла; 5 – Дверцята завантажувальні; 6 – Дверцята ревізійні; 7 - Патрубок прямої мережевої води; 8 - Патрубок зворотної мережної води; 9 – Клапан подачі повітря; 10 – Штуцер під запобіжний клапан; 11 - Борів; 12 - Шибер тяги топкових газів; 13 - Колосникові грати; 14 - Заслінка; 15 - Водяна оболонка; 16 – теплоізоляція корпусу; 17 - Регулятор тяги; 18 - Ланцюг.



Котли на пеллетах серії Duo Uni Pellet (КТ-2ЕPG) – економічно вигідну та ефективне обладнання.


Доставка замовлень здійснюється на всій території України. Надсилання замовлень здійснюється в термін від 1 до 3 днів від дати підтвердження замовлення, за наявності товару на складі.
Товар постачається за передоплатою, або за умов оплати накладеним платтям. Тобто оплата проводиться після отримання товару. Поштові послуги з перекладу платежі (процент перевізника за доставку грошей від покупця продавцю) клієнт оплачує додатково. Вартість переведення накладеної платежі 2% від суми.
| Основні | |
|---|---|
| Виробник | Altep |
| Країна виробник | Україна |
| Потужність номінальна | 15 кВт |
| Теплоносій | Вода |
| Тип котла | Тривалого горіння |
| Вид пального | Тверде |
| Види твердого палива | ДСП, МДФ, Стружка, Дрова, Тріска, Тирса, Пелети, Брикети, Кора, Кам'яне вугілля, Буре вугілля, Антрацит, Кокс, Торф |
| Автоматична подача палива | Ні |
| Коефіцієнт корисної дії | 86 % |
| Призначення котла | Двуконтурний |
| Спосіб установки | Підлоговий |
| Тип топки | Закрита |
| Об'єм камери згоряння | 66 л |
| Об'єм води в котлі | 62 л |
| Матеріал теплообмінника | Сталь |
| Спосіб відведення відпрацьованих газів | Димар |
| Площа обігріву | 150 кв.м |
| Колір | Червоний |
| Вага | 230 кг |
| Гарантійний термін | 60 міс |
| Стан | Новий |
| Управління | Механічне |
| Товщина сталі | 6 мм |
| Користувальницькі характеристики | |
| Потужність номінальна (кВт) | 15 |